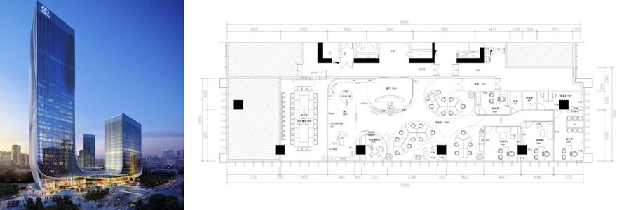
项目地址:深圳.方大城 | 面积:500平米 | 风格:现代
清控科创控股股份有限公司是以科技创新服务为主营业务的科技园区建设运营商和科技服务提供商,是清华产业科技创新平台、清华控股战略功能平台、清华控股成员企业。
[
返回顶部
]
上一篇:
黄埔雅苑
下一篇:
华侨城新天鹅湖
| email:lcspace@yeah.net | web:www.lcspace.art |
粤ICP备17035716号-1
| 深圳市林创空间设计工程有限公司版权所有 |