项目地址:深圳.龙华.春华四季园 | 户型:四房三厅 | 面积:160平米 | 风格:混搭西班牙
 
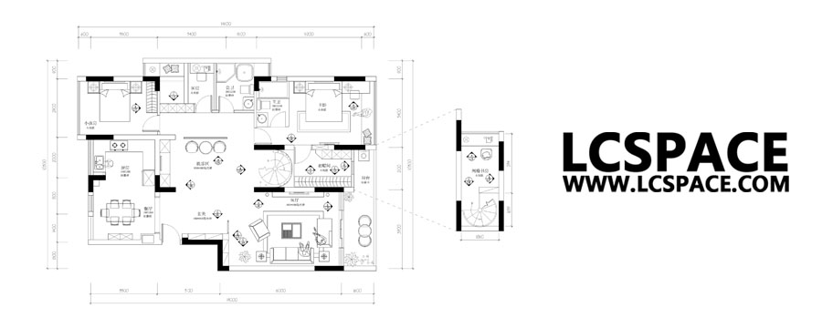
这是春华四季园38栋的房子,本身为三室两厅的户型,拥有上下挑空的两处阳台,经过艰辛的协商,最后才将其利用,加建了两层的楼板,便是现在的厨房和小书房,把原有的阳台部分,变成了主人房的衣帽间和旋转楼梯间;原有的向下挑空部分,加建楼板后成为现在的厨房,原有的厨房和生活阳台,则打通一起,成为宽敞的餐厅,入门部分,打通了原有的小房间,增添了饶有情趣的娱乐区,品茶,会友,弹琴,都是好去处。我们设计为清淡的整体风格,流畅的弧形造型,暖暖的暗藏灯光,就如幽幽兰香,清新而耐人寻味着。


平面布局方案



弧形分割出的背景墙,自然天成,大理石,自然纹理的壁纸,自然的气息,毫不遮掩。



沙发背景随意的挂画,装饰架里的收藏,加一杯浓茶......



喜欢暖黄色灯光里的旋转楼梯,中心的一景;还有大大的鞋柜,从容的应对频繁的外出吧!



红酒,屏风,好友,闲谈,享受......



杏黄色里的餐厅,食欲也增加了。



清新的卧室,线帘的隔屏,还有暗藏其中的衣帽间。



有时候简洁会更舒适。

 
[返回顶部]
上一篇:上塘道.简洁也可以奢华      下一篇:唯美元素